Dienesta viesnīca Dzirciemā
Mūsdienīga dienesta viesnīca blakus RSU centrālajai ēkai, kas piedāvā moderni aprīkotus numurus un vidi, kas pielāgota studijām un brīvā laika pavadīšanai.
2017. gadā uzbūvētā studentu jeb dienesta viesnīca atrodas vien 100 metru attālumā no RSU centrālās ēkas, tāpēc studenti var ērtāk apvienot studijas ar dzīvošanu, jo nav vajadzīgs papildu laiks nokļūšanai uz universitāti ar transportu.
RSU dienesta viesnīca Dzirciemā ir trīsstāvu ēka ar 135 numuriem, no kuriem četri paredzēti personām ar kustību ierobežojumiem – pēc platības tie ir lielāki, mēbeles ir novietotas zemāk, dušas un labierīcību telpa ir pielāgota (ar speciālo dušas krēslu, balstiem, palīdzības pogu un regulējamu spoguli).
Projektējot un būvējot dienesta viesnīcu, tika domāts par to, lai visas koplietošanas telpas tajā būtu piemērotas cilvēkiem ar īpašām vajadzībām. Koplietošanas telpas, ieejas durvis viesnīcā, lifts un ieejas durvis istabiņās ir pietiekami platas, lai pa tām varētu pārvietoties cilvēki ratiņkrēslos. Publiskās labierīcības ir speciāli aprīkotas, lai tās varētu izmantot cilvēki ar īpašām vajadzībām – tajās ierīkota palīdzības poga, balsti un regulējams spogulis.
Istabu kategorijas un cenas
Šajā dienesta viesnīcā numuri iedalīti trīs kategorijās un to cenas ir no 310 līdz 525 EUR mēnesī.
- C kategorija
Numuri paredzēti piecām personām (platība: 98,6 m²). Tajos ietilpst kopēja dzīvojamā telpa, virtuves zona, divas dušas telpas ar labierīcībām un piecas atsevišķas guļamtelpas, kas katra paredzēta vienai personai.
Numura aprīkojums: vienguļamā gulta ar spilvenu, segu un gultasveļu, dvieļiem, rakstāmgalds ar galda lampu, krēsls, mācību grāmatu plaukts, skapis ar bīdāmām durvīm, virtuves iekārta ar elektrisko plīti, tvaiku nosūcēju un ledusskapi, ēdamgalds, dīvāns. Pieejams bezmaksas bezvadu internets (WiFi).
Mēneša maksa EUR ar PVN * Diennakts maksa EUR ar PVN par īstermiņa uzturēšanos (līdz 30 diennaktīm) * RSU un RSU SKMK studentiem, darbiniekiem un viespasniedzējiem Vienai personai guļamtelpā 450 45 Citām personām (viesiem) Vienai personai guļamtelpā 520 50 * Fiksētajā maksā ietilpst komunālie pakalpojumi: apkure, ūdens un elektrība, WiFi, citas administrēšanas un uzturēšanas izmaksas.
Atlaides
Īstermiņa īres maksājumiem avansā tiek piemērota atlaide:
- 15 % atlaide, ja īstermiņa īres periods ir 11–20 diennaktis;
- 30 % atlaide, ja īstermiņa īres periods ir 21–30 diennaktis.












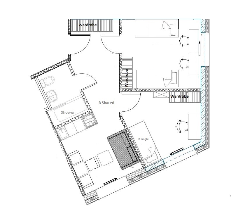
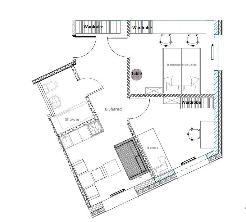
- B kategorija
Numuri divām līdz trīs personām (platība: 39,9–45,8 m²). Tajos ietilpst kopēja dzīvojamā telpa, virtuves zona, dušas telpa ar labierīcībām un divas atsevišķas guļamtelpas, kas paredzētas vienai vai divām personām (pārim).
Numura aprīkojums: vienguļamā gulta ar spilvenu, segu, gultasveļu un dvieļiem, rakstāmgalds ar galda lampu, krēsls, grāmatu plaukts, skapis ar bīdāmām durvīm, virtuves iekārta ar elektrisko plīti, tvaiku nosūcēju un ledusskapi, ēdamgalds. Pieejams bezmaksas bezvadu internets (WiFi).
Mēneša maksa EUR ar PVN * Diennakts maksa EUR ar PVN par īstermiņa uzturēšanos (līdz 30 diennaktīm) * RSU un RSU SKMK studentiem, darbiniekiem un viespasniedzējiem Vienai personai guļamtelpā 525 45 Divām personām guļamtelpā
(pārim)310 (katrai personai) 30 (katrai personai) Citām personām (viesiem) Vienai personai guļamtelpā 600 50 Divām personām guļamtelpā
(pārim)400 (katrai personai) 40 (katrai personai) * Fiksētajā maksā ietilpst komunālie pakalpojumi: apkure, ūdens un elektrība, WiFi, citas administrēšanas un uzturēšanas izmaksas.
Atlaides
Īstermiņa īres maksājumiem avansā tiek piemērota atlaide:
- 15 % atlaide, ja īstermiņa īres periods ir 11–20 diennaktis;
- 30 % atlaide, ja īstermiņa īres periods ir 21–30 diennaktis.
















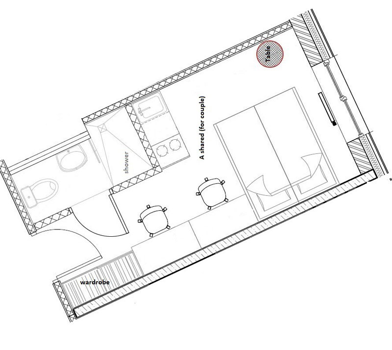
- A kategorija
Vienistabas numuri vienai vai divām personām (platība: 17,4–23,3 m²). Tajos ietilpst dzīvojamā platība, virtuves zona un dušas telpa ar labierīcībām.
Numura aprīkojums: vienguļamā gulta ar spilvenu, segu, gultasveļu un dvieļiem, rakstāmgalds ar galda lampu, krēsls, grāmatu plaukts, skapis ar bīdāmām durvīm, virtuves iekārta ar elektrisko plīti, tvaiku nosūcēju un ledusskapi. Pieejams bezmaksas bezvadu internets (WiFi).
Mēneša maksa EUR ar PVN * Diennakts maksa EUR ar PVN par īstermiņa uzturēšanos (līdz 30 diennaktīm) * RSU un RSU SKMK studentiem, darbiniekiem un viespasniedzējiem Vienai personai 525 45 Divām personām 310 (katrai personai) 30 Citām personām (viesiem) Vienai personai 600 50 Divām personām 400 40 * Fiksētajā maksā ietilpst komunālie pakalpojumi: apkure, ūdens un elektrība, WiFi, citas administrēšanas un uzturēšanas izmaksas.
Atlaides
Īstermiņa īres maksājumiem avansā tiek piemērota atlaide:
- 15 % atlaide, ja īstermiņa īres periods ir 11–20 diennaktis;
- 30 % atlaide, ja īstermiņa īres periods ir 21–30 diennaktis.









Cena par dzīvošanu šajā studentu viesnīcā ir fiksēta, un tā ietver maksu par izmantotajiem komunālajiem pakalpojumiem (apkure, ūdens, elektrība, WiFi, citas administrēšanas un uzturēšanas izmaksas). Sākot dzīvot studentu viesnīcā, nepieciešama pirmā mēneša īres maksa un drošības nauda, kas vienāda ar viena mēneša īres maksu (tā tiks atmaksāta četru nedēļu laikā pēc īres līguma termiņa beigām).
Katrā numurā ir gulta ar spilvenu, segu, gultasveļu un dvieļiem, rakstāmgalds, krēsls, grāmatu plaukts, drēbju skapis, virtuves iekārta ar elektrisko plīti, tvaiku nosūcēju un ledusskapi, dušas telpa apvienojumā ar labierīcībām. Lūdzu ņemt vērā, ka studentiem pašiem jānodrošina virtuves piederumi (trauki, galda piederumi, panna u. c.).
Papildu ērtības
- Mācību un atpūtas telpas
- Slēgta tipa velosipēdu novietnes
- Pazemes un virszemes autostāvvietas
- Veļas mazgātavas telpa
- Sporta zāle
Jaunā RSU dienesta viesnīca atrodas Dzirciemā – Rīgas apkaimē, kurā ir dažādi veikali un kafejnīcas, kā arī pieejams plašs sabiedrisko pakalpojumu klāsts.
- 3 min. gājiena attālumā – sabiedriskā transporta pietura
- 3–7 min. gājiena attālumā – kafejnīcas Daily (piedāvā arī veģetāro ēdienu) u. c.
- Vienas tramvaja pieturas attālumā līdz kafejnīcai LIDO
- 5–7 min. gājiena attālumā – veikali Rimi, Mego, Maxima
- 20 min. ar sabiedrisko transportu – sporta klubi Lemon Gym un Gym! Olimpia
- 25 min. ar sabiedrisko transportu – Rīgas centrālā stacija
- 20 min. ar sabiedrisko transportu – vecpilsēta
- 30 min. gājiena attālumā vai 20 min. ar sabiedrisko transportu – Paula Stradiņa Klīniskā universitātes slimnīca
- Rezervēšana
- Dzirciema dienesta viesnīcas pieteikšanās anketa ir slēgta. Pieteikšanās anketa 2026.gada rudens semestrim tiks atvērta 2026.gada 15.jūlijā plkst. 10.Dienesta viesnīcas administrācija pieteikumus pieņem tikai ar anketas starpniecību. Rezervācijas e-pastā netiks pieņemtas.
Rezervācijas apstiprinājums
Numurs ir rezervēts, kad students veicis rēķinā norādīto maksājumu un saņēmis rezervācijas apstiprinājumu norādītajā e-pasta adresē.
Lai sāktu dzīvot viesnīcā, pēc ierašanās jāparaksta dienesta viesnīcas īres līgums divos eksemplāros.
- Autostāvvietas
Studentu viesnīcā ir pieejamas pazemes autostāvvieta 37 automašīnām un virszemes autostāvvieta 32 automašīnām. Ēka ir savienota ar pazemes autostāvvietu.
Stāvvietas izmantošanas maksa
- Virszemes autostāvvieta: 45 EUR/mēn., 15 EUR/ diennaktī
- Pazemes autostāvvieta: 60 EUR/mēn., 15 EUR/diennaktī
- Vides pieejamība
Numuri, kuri paredzēti personām ar kustību ierobežojumiem, pēc platības ir lielāki, mēbeles ir novietotas zemāk, dušas un labierīcību telpa ir pielāgota (ar speciālo dušas krēslu, balstiem, palīdzības pogu un regulējamu spoguli).
Projektējot un būvējot dienesta viesnīcu, tika domāts par to, lai visas koplietošanas telpas tajā būtu piemērotas cilvēkiem ar īpašām vajadzībām. Koplietošanas telpas, ieejas durvis viesnīcā, lifts un ieejas durvis istabiņās ir pietiekami platas, lai pa tām varētu pārvietoties cilvēki ratiņkrēslā. Publiskās labierīcības ir speciāli aprīkotas, lai tās varētu izmantot cilvēki ar īpašām vajadzībām – tajās ierīkota palīdzības poga, balsti un regulējams spogulis.
FOTO, VIDEO: LNT reportāža par RSU jaunās dienesta viesnīcas spāru svētkiem
FOTO: RSU jaunās dienesta viesnīcas pamatos iemūrē kapsulu ar vēstījumu
Dokumenti
Dienesta viesnīcas Dzirciems buklets
Līgums
Dienesta viesnīcas iekšējās kārtības noteikumi
Printēšanas instrukcija















